CHILDCARE CENTRE AS A MINI-CITY
East Sydney Early Learning Centre
Location
Darlinghurst, Sydney
Completion
2016
Type
Public
Client
City of Sydney
Traditional Custodians
Gadigal
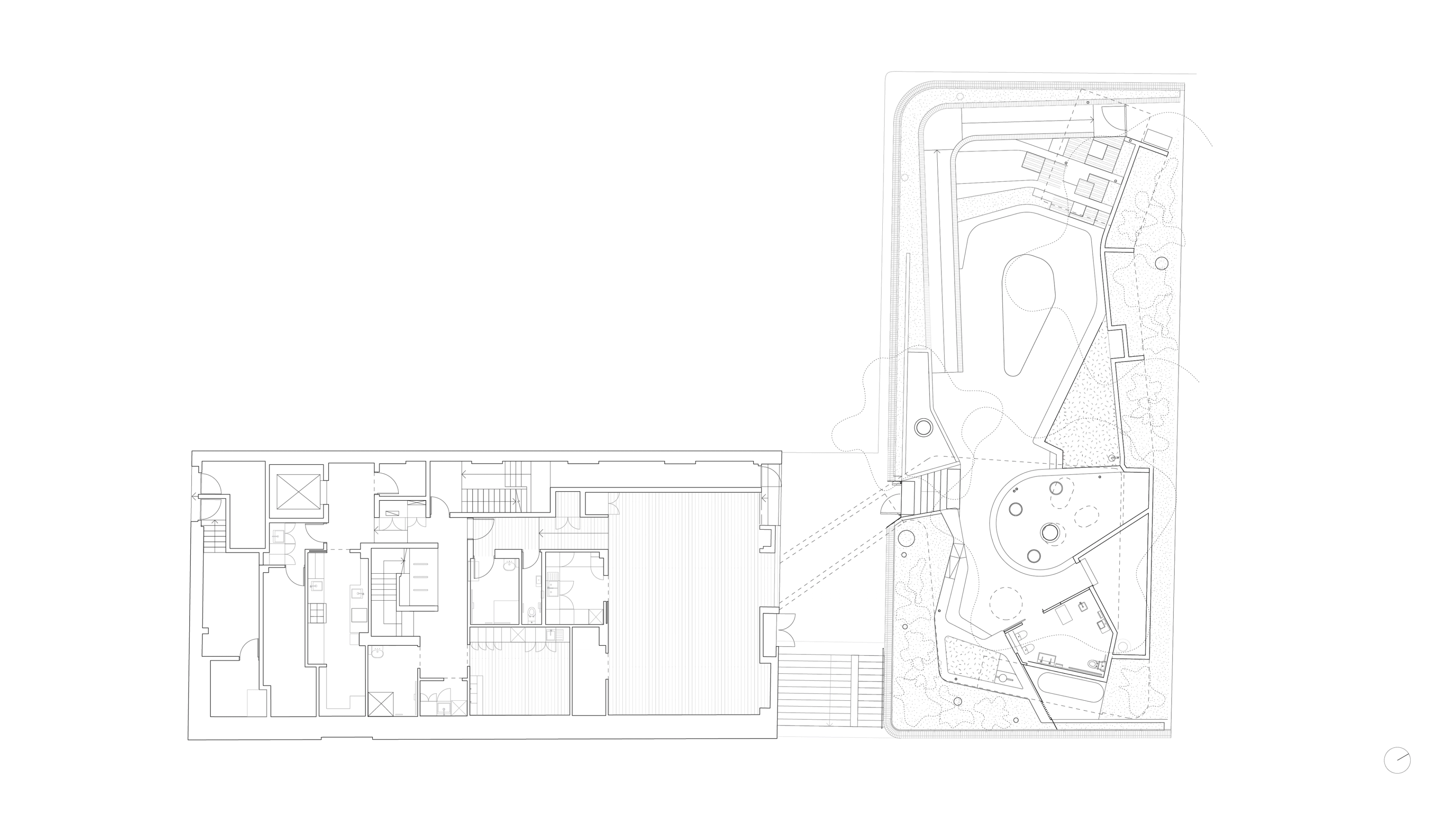
The East Sydney Early Learning Centre is an adaptive re-use of an existing 4 level 1920’s industrial building to house a 60 place childcare centre and community space within the tight knit urban grain of Darlinghurst.
Celebrating its unique existing building fabric and urban location, the building was conceived as a ‘mini-city’ that enabled experiential learning by re-imagining the urban fabric at a child’s scale. All decisions on interior layout, material detailing, window openings, and finishes, including infrastructural elements such as fire sprinklers, were conceptualised to encourage a fascination with cities and city life as a guiding pedagogical tenet for the childcare.
The initial project brief requested the closure of Berwick Lane to connect the John Birt memorial playground with the existing building, suggesting the childcare centre occupy the lower three levels of the existing building, with the community centre located on the top level. Following detailed urban analysis, community consultation and City of Sydney review a far more imaginative solution was realised – the laneway remained open and was significantly improved through a new stair construction, the community centre was located at the lower ground level to animate and enliven the laneway, and the top 3 levels of the building housed the childcare, with a treehouse bridge link crossing the laneway and providing a journey down to the ground level of the playground.
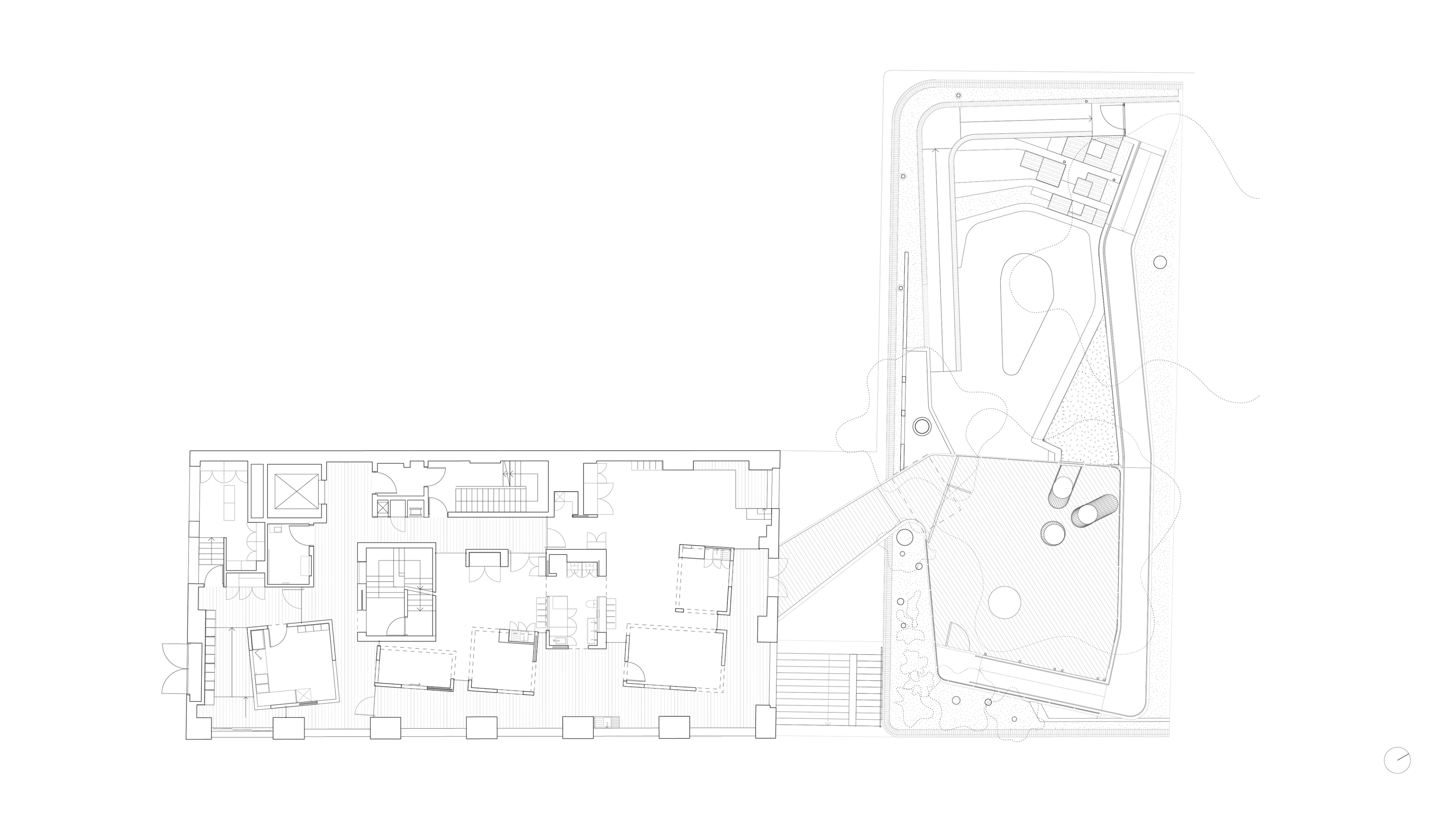
Creating a sense of wonder and exploration of the ‘city within the city’ was a key design parameter we set ourself in the development of spaces within the 1920’s brick warehouse. A series of play space houses or ‘pods’ are connected by a network of social laneways and indoor parks. A double height centrally located light well houses an urban plaza in the form of a large sandpit. A rooftop garden connects the imaginative city of the building with the real city viewed beyond.
Two further considerations within the development the internal ‘pod’ buildings animating the existing fabric was the creation of opportunities for funnels of natural light deep into the buildings’ interior, and the creation of a highly articulated interior for internal play spaces, creating a range of spatial circumstances for the many learning activities occurring within the interior including active play, theatrical play, imaginative play, and opportunities for quiet play.
The sustainability objectives of the East Sydney Early Learning Centre were aligned with the City of Sydney 2030 Sustainability objectives. Initiatives included photovoltaic cells for rooftop solar capture, bio-filtration at the window openings through internal planters and landscaping, mixed mode ventilation and thermal zoning to contain and minimise areas of air-conditioning, alternative sources of user thermal comfort including solar boosted hydronic heating and radiators, extensive use of light wells to create daylighting deep into the internal fabric of the building, rainwater harvesting and use of water efficient fixtures, green transport planning including cycle parking and staff change facilities, and a regime of material selection for sustainable materials including non-toxic materials with high recycled content and/or highly recyclable, low VOC finishes, low formaldehyde products & furniture, sustainable timbers, rapidly renewable and locally sourced materials.
A series of play space houses or ‘pods’ are connected by a network of social laneways and indoor parks. Two further considerations within the development the internal ‘pod’ buildings animating the existing fabric was the creation of opportunities for funnels of natural light deep into the buildings’ interior, and the creation of a highly articulated interior for internal play spaces, creating a range of spatial circumstances for the many learning activities occurring within the interior including active play, theatrical play, imaginative play, and opportunities for quiet play.
The playful interior concept was integrated into other disciplines such as signage design, which drew inspiration from Scandinavian toy blocks to inspire a new ‘street’ sign and wayfinding aligned with the ‘mini-city’ concept.
Credits
Team
Andrew Burges, Alex Wilson, Jo Tinyou, Celia Carrol, Anna Field, Chris Su, Chris Mullaney, John Nguyen, Louise Lovmand, Nadia Zhao
Builder
Belmadar Constructions
Landscape
JMD Design
Signage
TOKO by Design
Photography
Peter Bennetts
Awards
2017
Commercial Exterior Commendation, Intergrain Timber Vision Awards
2017
Daryl Jackson Award for Educational Architecture, National AIA Architecture Awards
2017
School Completed Buildings Award, World Architecture Festival
2017
Travel Bursary Award, Intergrain Award
2017
Educational Architecture Award, NSW AIA Architecture Awards





















































